Rif: NUOVO COMPLESSO RESIDENZIALE
MONTICHIARI
BRESCIA € 238.000- Appartamento
- Vendita
- 85 Mq
- 3 Vani
- 2 Camere
- 1 Bagni
- Garage
- EPI: 175 kwh/m2 anno
- Classe energetica: A4
- Descrizione
- Dettaglio immobile
- Consistenze
- Mappa
- Planimetrie
In zona centrale a Montichiari,
comodo a tutti i servizi e al centro, in fase di costruzione nuovo complesso residenziale con consegna prevista entro 30/06/2026,
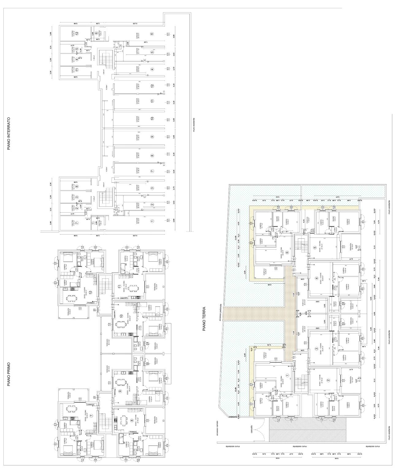
disponibile ultimo trilocale al piano primo con terrazza coperta con travi a vista, cucina a vista e luminosa zona giorno, disimpegno notte con camera matrimoniale, camera doppia e bagno, concludono la proprietà un' ampia cantina e box auto doppio.
Nei disegni in allegato identificato con il n.8
Ottime finiture tra cui:
impianto fotovoltaico 3kw, riscaldamento a pavimento, cappotto spessore 14 cm, serramenti in pvc con predisposizione per impianto di allarme, videocitofono, cancello carraio motorizzato, basculante motorizzata, pavimenti e rivestimenti a scelta dell' acquirente come da capitolato, soglie e davanzali in marmo di Botticino, ecc...
Classe energetica A4
Prezzo Eu. 238.000,00
PER QUALSIASI INFORMAZIONE O FISSARE UNA VISITA ALL' IMMOBILE CONTATTACI AL N. 393-5138685 OPPURE SCRIVICI UNA MAIL ALL' INDIRIZZO : immobiliaregaribaldi29@gmail.com
comodo a tutti i servizi e al centro, in fase di costruzione nuovo complesso residenziale con consegna prevista entro 30/06/2026,
disponibile ultimo trilocale al piano primo con terrazza coperta con travi a vista, cucina a vista e luminosa zona giorno, disimpegno notte con camera matrimoniale, camera doppia e bagno, concludono la proprietà un' ampia cantina e box auto doppio.
Nei disegni in allegato identificato con il n.8
Ottime finiture tra cui:
impianto fotovoltaico 3kw, riscaldamento a pavimento, cappotto spessore 14 cm, serramenti in pvc con predisposizione per impianto di allarme, videocitofono, cancello carraio motorizzato, basculante motorizzata, pavimenti e rivestimenti a scelta dell' acquirente come da capitolato, soglie e davanzali in marmo di Botticino, ecc...
Classe energetica A4
Prezzo Eu. 238.000,00
PER QUALSIASI INFORMAZIONE O FISSARE UNA VISITA ALL' IMMOBILE CONTATTACI AL N. 393-5138685 OPPURE SCRIVICI UNA MAIL ALL' INDIRIZZO : immobiliaregaribaldi29@gmail.com
Contratto Vendita
Rif NUOVO COMPLESSO RESIDENZIALE
Prezzo € 238.000
Provincia Brescia
Comune Montichiari
Indirizzo Viale Europa">
Vani 3
Camere 2
Bagni 1
Classe energetica
A4 (DL 90/2013)
EPgl,nren 175 kwh/m2 anno
Piano 1 / 2
Riscaldamento autonomo
Condizioni nuova costruzione
Anno di costruzione 2025
Cucina a vista
| Descrizione | Superficie | Sup. comm. |
|---|---|---|
| Principali | ||
| Immobile - 1° piano | 85 Mq | 85 Mqc |
| Totale | 85 Mqc | |
Zoom della mappa
Apri con:
Apple Maps
Google Maps
Waze
Apri la mappa







